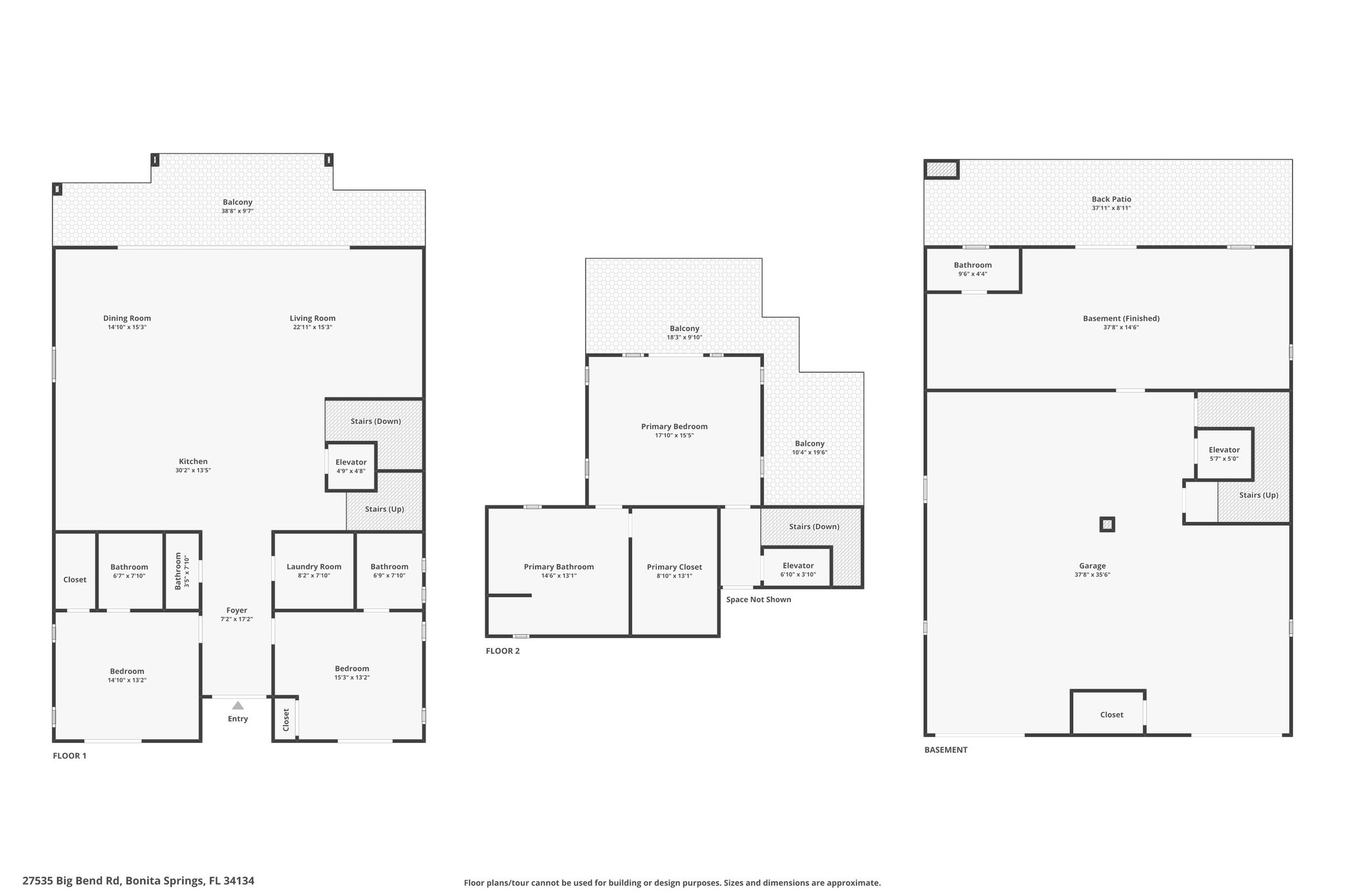
27535 Big Bend Rd, Bonita Springs, FL 34134
Toggle Navigation
Images
Floor Plans
3D Tour
Map
Previous Photo
Next Photo
Images
Slideshow
Photo Grid
Hide
Previous
Next
Show more
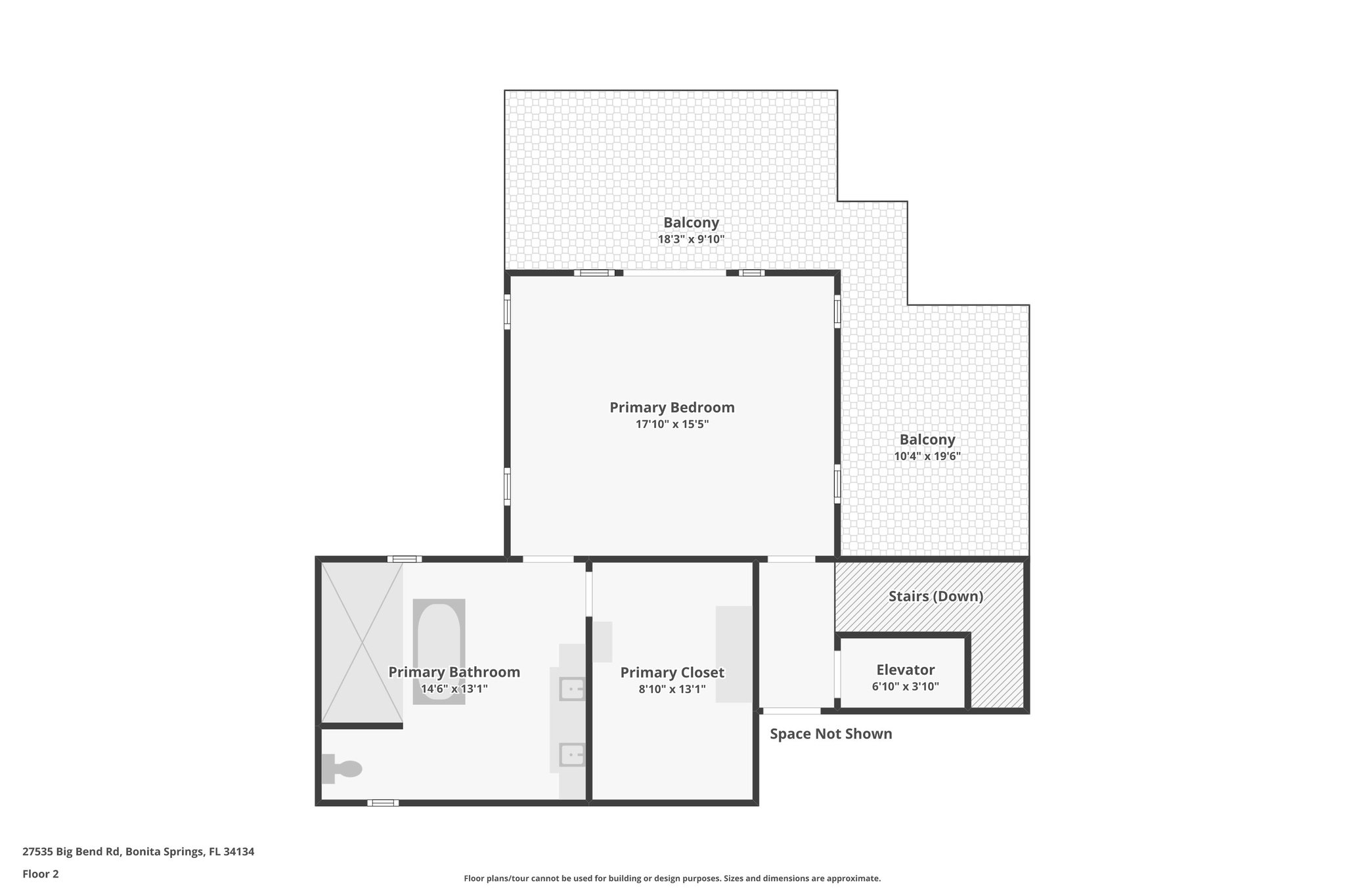
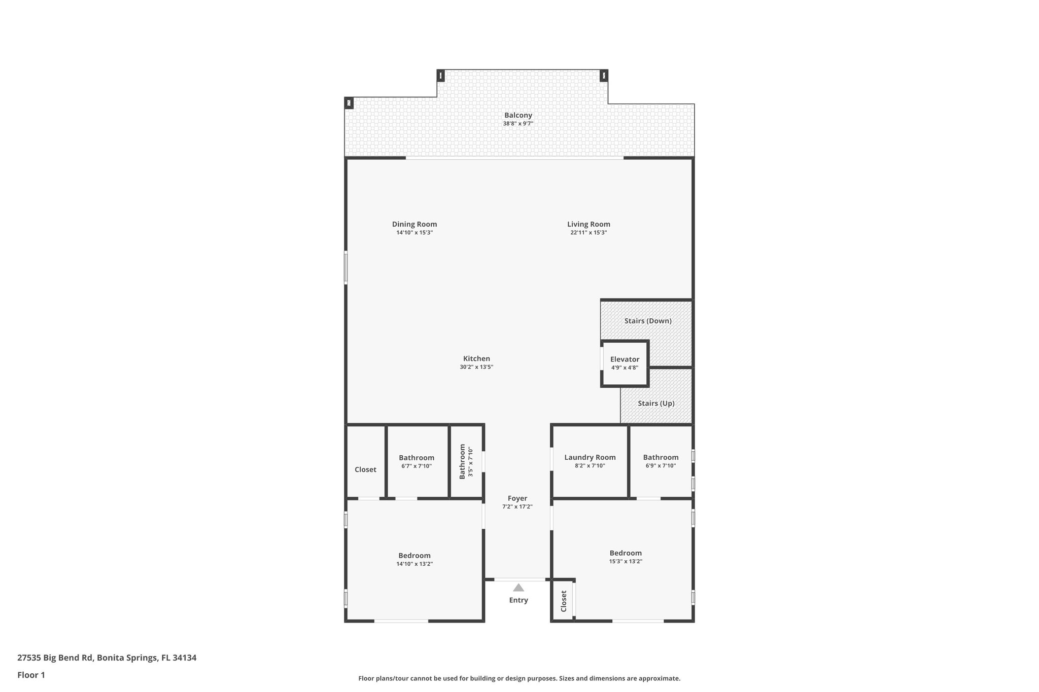
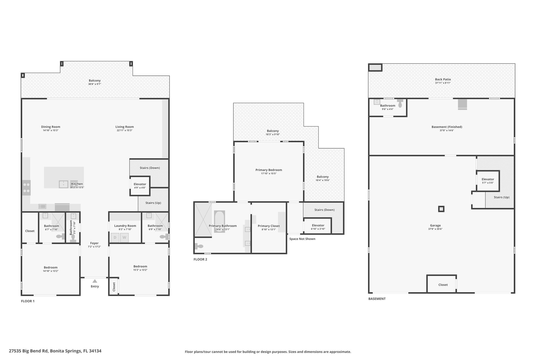
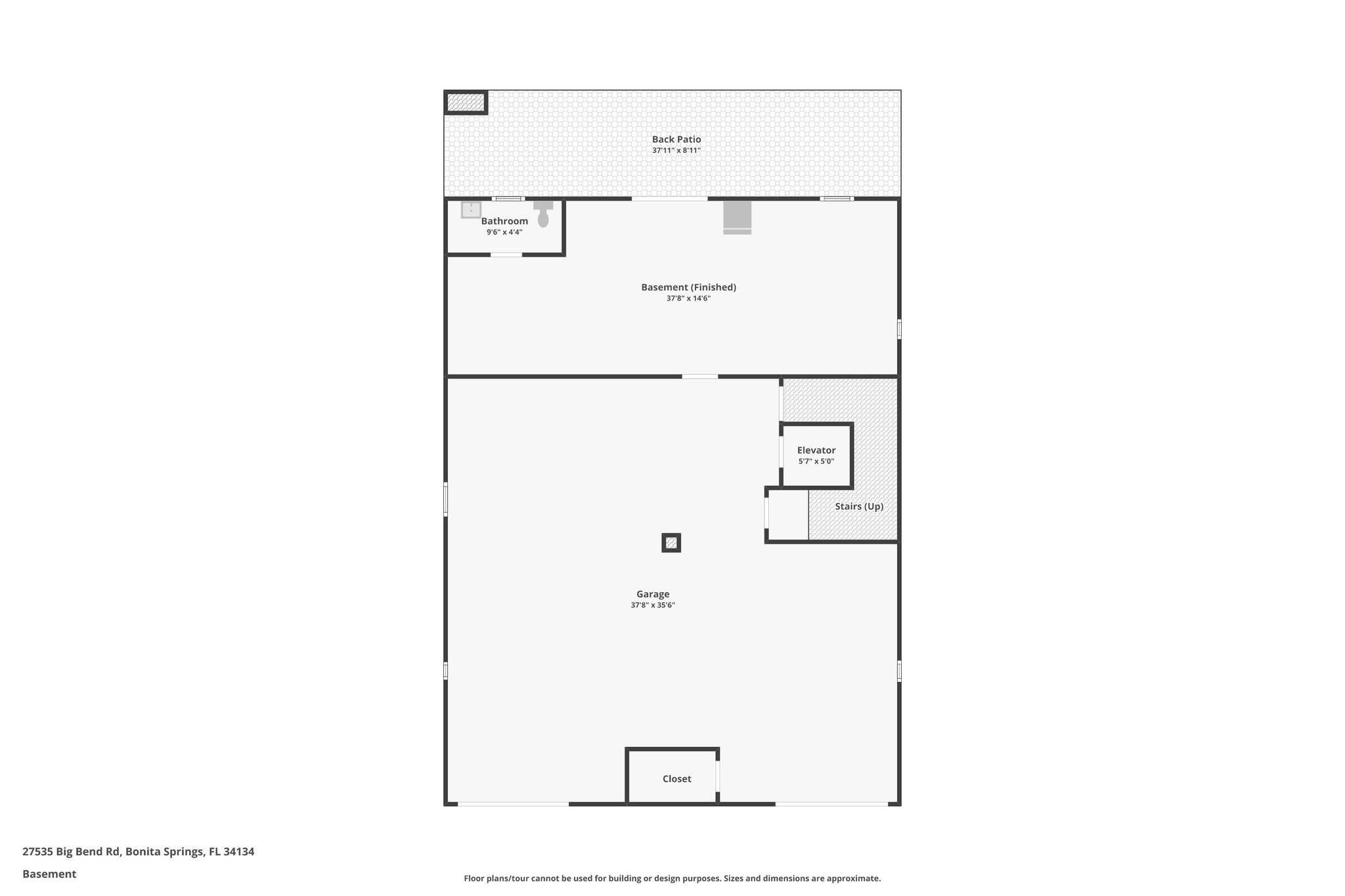
Floor Plans
Slideshow
Photo Grid
Hide
Previous
Next
3D Tour